thank you
Your email has been sent.
Bldg A 48366-48380 Milmont Dr 40,320 SF of Industrial Space Available in Fremont, CA 94538

Highlights
- Clear height Up to ±28 feet.
- 1,000 Amps @ 277/480V of Power
- Insulated warehouse
- Exceptional Fremont location with excellent access to I-880 and I-680.
Features
Clear Height
24’
Column Spacing
70’ x 24’
Drive In Bays
8
Exterior Dock Doors
24
Levelers
24
Standard Parking Spaces
40
All Available Space(1)
Display Rental Rate as
- Space
- Size
- Term
- Rental Rate
- Space Use
- Build-Out
- Available
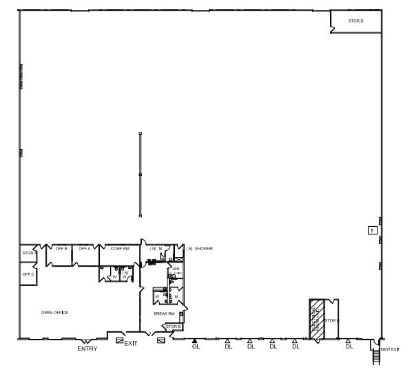
A total of 40,320 square feet of rent-able industrial space comprised of 5,050 square feet of office space.
- Includes 5,050 SF of dedicated office space
- Space is in Excellent Condition
| Space | Size | Term | Rental Rate | Space Use | Build-Out | Available |
| 1st Floor | 40,320 SF | Negotiable | Upon Request Upon Request Upon Request Upon Request Upon Request Upon Request | Industrial | Full Build-Out | Now |
1st Floor
| Size |
| 40,320 SF |
| Term |
| Negotiable |
| Rental Rate |
| Upon Request Upon Request Upon Request Upon Request Upon Request Upon Request |
| Space Use |
| Industrial |
| Build-Out |
| Full Build-Out |
| Available |
| Now |
1 of 1
Videos
Matterport 3D Exterior
Matterport 3D Tour
Photos
Street View
Street
Map
1st Floor
| Size | 40,320 SF |
| Term | Negotiable |
| Rental Rate | Upon Request |
| Space Use | Industrial |
| Build-Out | Full Build-Out |
| Available | Now |
A total of 40,320 square feet of rent-able industrial space comprised of 5,050 square feet of office space.
- Includes 5,050 SF of dedicated office space
- Space is in Excellent Condition
Warehouse Facility Facts
Building Size
132,652 SF
Lot Size
6.82 AC
Year Built
1983
Construction
Masonry
Sprinkler System
Wet
Water
City
Sewer
City
Power Supply
Amps: 150 Volts: 277-480 Phase: 3 Wire: 4
Zoning
I-R, Fremont
Select Tenants
- Floor
- Tenant Name
- Industry
- 1st
- Alterg, Inc
- Retailer
- 1st
- EIS, Inc.
- Wholesaler
- 1st
- SourceSelect
- -
1 1
Somewhat walkable
30/100
Exceptionally drivable
100/100
Limited public transit
30/100
Fairly bikeable
50/100
1 of 2
Videos
Matterport 3D Exterior
Matterport 3D Tour
Photos
Street View
Street
Map
1 of 1
Presented by
Bldg A | 48366-48380 Milmont Dr
Hmm, there seems to have been an error sending your message. Please try again.
Thanks! Your message was sent.


